Zografou 67

Zografou 67

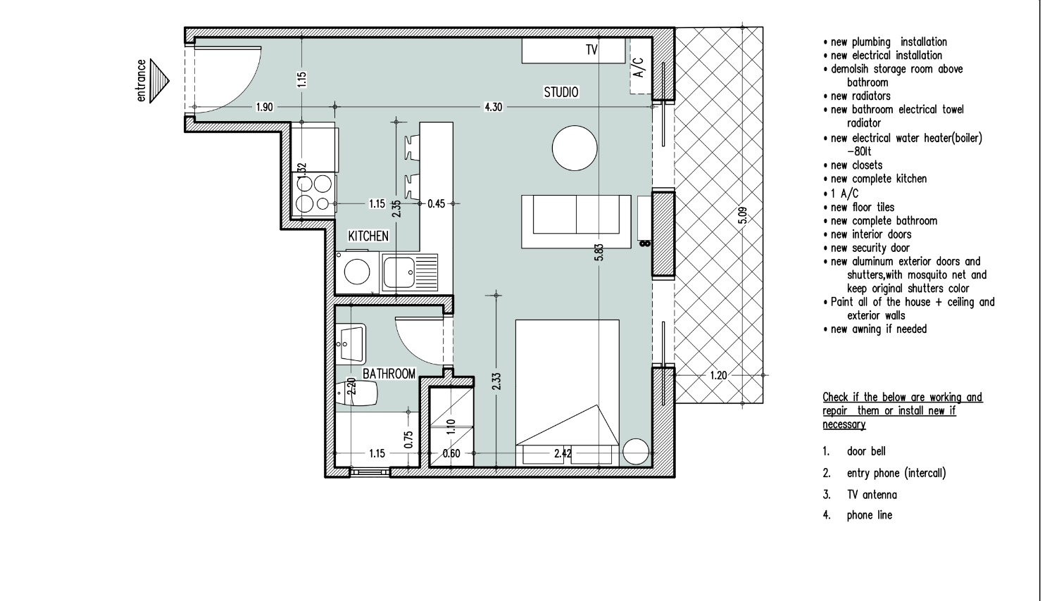
קומה 1
גודל דירת סטודיו 30 מטר
€28000 מחיר רכישה
€13000 עלות שיפוץ
€8000 הוצאות נלוות
6 שנים תקופת החזקה
€80000 שווי נוכחי
ה31000 רווח מהשבחה
€23400 רווח משכירות
€59000 רווח כולל

שאלות נפוצות

sdefeafef
+

asfsafsaasf

eteqtqewt
+

dgfaasf

etwwqtwqt
+

sfhsdghsd

צור קשר